 
             
             
             
             
             
             
             
             
             
             
             
             
             
            
          1
          /
          1
        
      Features
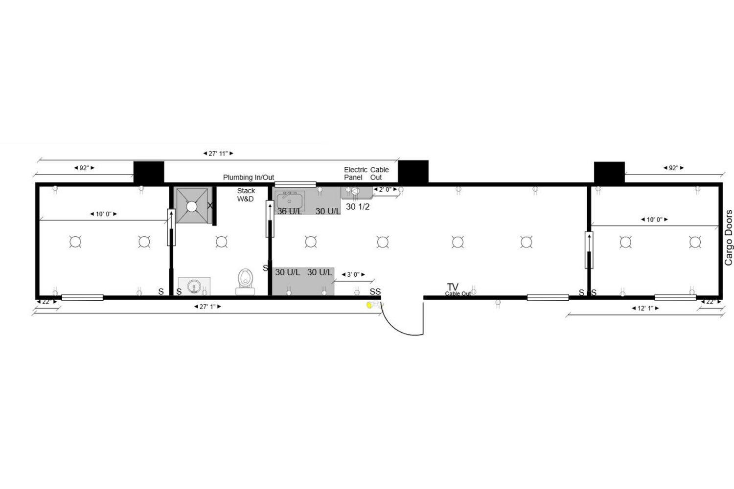
53' High Cube Refurbished Shipping Container
36" Steel Entry Door
Four 36" x 48" Windows
Electric Package with 200 Amp Service Panel, Interior LED Can Lights, Exterior LED Floodlight, and Outlets
Three 18,500 BTU A/C Units with Heat + Frame and Weather Covers with Security Bars
Interior 2LB spray foam insulation (18 R-Value)
Interior Framing
Interior Pine Plank Siding with Cedar Trim
Full Bathroom with 36" one piece shower, Vanity with Sink, Toilet, Tankless Water Heater, and Stackable Washer / Dryer Connections
Three Interior Pocket Doors
Kitchenette with Denver Cabinets, 30" Stainless Steel Sink, and Formica Countertop
Vinyl Flooring
Exterior Paint in New Container Tan
 Specifications
Exterior Door Size/Shape
                
                  1: 36" Steel
                
              
              Windows Size/Shape
                
                  4: 36"x48"
                
              
              Electric
                
                  Yes
                
              
              Length
                
                  53'
                
              
            Bath Full/Half/None
                
                  Full
                
              
              AC Unit(s)
                
                  3
                
              
              Flooring
                
                  Vinyl
                
                
              Width
                
                  8' 6"
                
              
            Kitchen/ette
                
                  Kitchen
                
              
              Security Package
                
                  N/A
                
              
              Wall Covering
                
                  Pine siding/Spray Foam
                
              
              Height
                
                  9' 6"
                
              
            TAKE THE NEXT STEP
53' Shipping Container Retreat Cabin
SHOW ORDER SUMMARY
ADD-ONS - 0
INCLUDED IN YOUR PURCHASE
Warranty
- 1-Year Warranty Against Leaks from Steel Roof & Steel Walls (Warranty not included with Wind & Watertight Containers)
- 90-Day Warranty Against Workmanship (Cabins, Offices, and Customs)
- 30-Day Warranty on Appliances, On-Demand Heater, AC/Heat Units, and Other Items with Manufacturer Warranty. (After 30 days, contact the manufacturer for repairs.)
TOTAL WITH ADD-ONS
$63,935.00
            CALL FOR A QUOTE
          
        
        
       
            







